Icon/Instagram Created with Sketch. ndg.westmount clients@sergegabriel.com 514 917 2228 5 533 597 visiteurs

Commercial (attaché)

Boulevard Décarie

Vendu a 96,45% du prix demandé

Sommaire

Immeuble commercial luxueux offrant plus de 1700 pi.ca. brut par étage plus sous-sol avec un emplacement idéal sur Décarie. Cet espace ouvert et spacieux est déjà aménagé pour accueillir un bureau. L’immeuble a bénéficié d’un entretien inégalé au fil des ans et des améliorations continues. Le mobilier de bureau, ses panneaux et cloisons, ainsi que les stores et meubles sont inclus! À proximité d’artères majeures, autoroute 15, Hampstead, Village Queen Mary, NDG, Snowdon, métro. 


Détails

357.5 m2 (3848 pi2) de superficie brute

Terrain de 240.7 m2 (2590 pi2)

*Basé sur le rôle d’évaluation de la Ville de Montréal


Aspects techniques :


Planchers de bois et tapis

Toit en membrane élastomère, 2010 – garantie de 10 ans

Fenestration intérieure – le thermos des fenêtres est descellé

Électricité disjoncteurs 600 ampères (200 et 400)

Chauffe-eau électrique

Chauffage et air climatisé – air pulsé électrique

H.Q. (2021) = $1303 (inoccupés)


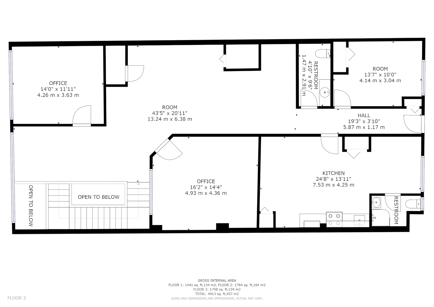
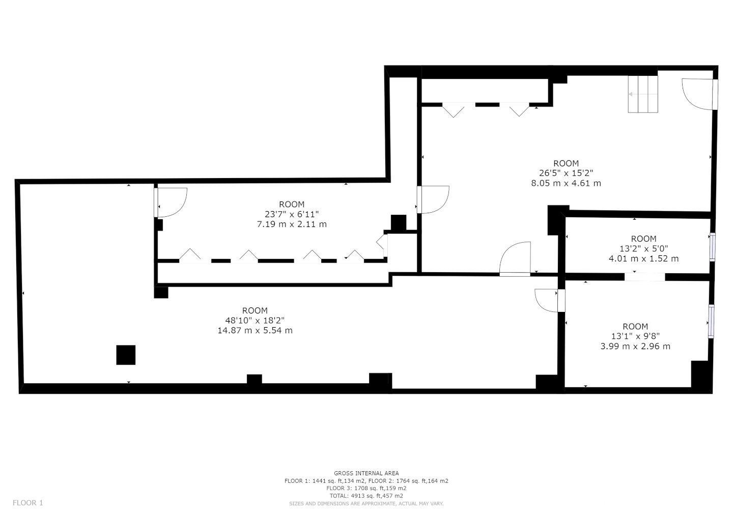
1er étage : plancher de tapis et ceramique

Hauteur des plafonds 10’-5’’

Hall d’entrée

Espace de travail ouvert avec panneaux de séparation et cloisons

Bureau fermé

Cuisine

Deux salles d’eau

Cour arrière clôturée


 Sous-sol non fini, plancher de béton

Hauteur des plafonds 6’-2’’

Espace de rangement


2ième étage : plancher de tapis, bois et ceramique

Hauteur des plafonds 8’-2’’

Espace de travail ouvert avec panneaux de séparation et cloisons

Salle de conférence

Bureau fermé

Chambre ou bureau fermé à l’arrière

Cuisine complète avec électroménagers et espace repas, ainsi qu’une salle de bains avec douche

Salle d’eau


Inclusions ; Sous-sol: armoire de cèdre, placards fermés, étagères, 2 x déshumidificateurs, rouleau de moquette. RDC: tous les meubles, stores et bureaux sauf ceux exclus. 2e: tous les meubles, stores, câblages et bureaux sauf ceux exclus.

Exclusions : RDC: bureau du fond avec dessus de cuir vert et table attenante.


Certificat de localisation 2018


**** Vendu tel quel sans aucune garantie légale de qualité et aux risques et périls de l'acheteur****


Déclarations du vendeur: Le vendeur déclare également que le chauffe-eau au 2e étage est non fonctionnel. On peut constater la présence de fils d'eau au sous-sol en particulier lors des pluies fortes. Le thermos des fenêtres est descellé. Occasionnellement, nous utilisons un radiateur additionnel au sous-sol.


Servitude restreinte de non-accès #1 724 678


***Dernière visite à 16h30, merci***

Salle(s) de bain(s): 1 + 3 x ½

Salle d'eau: 3

Complète: 1

Intérieur

357 m2 / 3848 p2 brut

Terrain

240 m2 / 2590 p2 net

Dépenses

électricité: 1303 $

Taxe municipale: 21 178 $

Taxe scolaire: 734 $

Évaluation Municipale

Année: 2021

Valeur du terrain: 145 400 $

Valeur du bâtiment: 614 400 $

La présente ne constitue pas une offre ou une promesse de vente pouvant lier le vendeur à l’acheteur, mais une invitation à soumettre des promesses d’achat.